振動給料機設備有小型和大型之分,物料不同使用型號則就不同。振動給料機在生產流程中用於把塊狀、顆粒狀物料從貯料倉中均勻、定時、連續地送入受料裝置。在砂石生產線中可為破碎機械連續均勻地喂料,並對物料進行粗篩分,廣泛應用於冶金、煤礦、選礦、建材、化工、磨料等行業的破碎、篩分聯合設備中。砂石料場、混凝土製砂、幹粉砂漿、機製砂、電廠脫硫、石英砂等廣泛使用。
振動給料機優勢:
適應性強:對各種礦岩特別是粘性礦岩適應性強,並可在多塵或含水較多的環境中工作。
運行穩定:采用雙偏心軸為激振源,振幅穩定,連續性好,激振力可調,能夠保障物料的流動性。
性價比高:體積小,重量輕,簡單緊湊,無轉動零部件,易損件少,投資小,耗電少,性價比高。
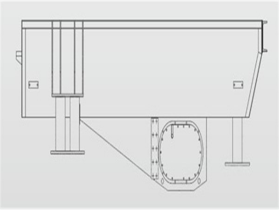
振動給料機是由給料槽體、激振器、彈簧支座、傳動裝置等組成。

振動給料機工作原理:
電動機通過三角帶驅動主動軸,再由主動軸上齒輪齧合被動軸轉動,主、被動軸同時反向旋轉,使槽體振動,使物料連續不斷流動,達到輸送物料的目的。
適用物料:河卵石、花崗岩、玄武岩、鐵礦石、石灰石、方解石、石英石、輝綠岩等
振動給料機技術參數:
型號 | 料槽尺寸 | 最大進料尺寸 | 處理能力 | 電機功率 | 重量 | 外形尺寸 |
(mm) | (mm) | (t/h) | (kw) | (kg) | (mm) | |
850×3000 | 850×3000 | 400 | 80-120 | 7.5 | 3900 | 3110×1800×1600 |
960×3800 | 960×3800 | 500 | 120-210 | 11 | 4200 | 3850×1950×1630 |
1100×4200 | 1100×4200 | 650 | 180-400 | 15 | 4800 | 4400×2050×1660 |
1100×4900 | 1100×4900 | 650 | 280-500 | 15-18.5 | 5600 | 5200×2050×1700 |
1300×4900 | 1300×4900 | 800 | 300-550 | 22 | 6700 | 5200×2350×1750 |
1500×6000 | 1500×6000 | 1020 | 500-900 | 30-45 | 10300 | 6160×2918×2292 |
